2 456
M006
1
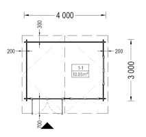
4x3
12 m2
5 - 6
DESCRIÇÃO
A casa modelo LILLE contém janelas com vidros duplos e portas transversais para um visual clássico e atemporal. Um enorme telhado em balanço que oferece uma área sombreada para relaxar ao ar livre. Construção robusta e durável de lingueta e ranhura. A casa de jardim LILLE, é tão compacta quanto elegante, é incrivelmente versátil e pode dar-lhe aquele espaço extra para relaxar. Se preferir, pode transformá-la numa área dedicada aos seus hobbies e atividades de todos os tipos. Pode até servir como uma solução de arrumação prática e indispensável no seu jardim. Se admira a estética clássica da madeira, esta joia de estilo tradicional pode ser ideal para o seu jardim e tornar-se num espaço fundamental no seu dia-a-dia.
O que está incluído no nosso Orçamento?
- Pack com toda a estrutura em madeira da casa (Piso, paredes, teto de madeira, portas e janelas)
- Portas e janelas de vidro duplo,
- Chão em madeira,
- Ferragens.
O que NÃO está incluído no nosso Orçamento? (Poderá ser orçamentado à parte)
- Eletrodomésticos,
- Eletricidade e Canalizações,
- Laje de Betão,
- Projeto de Arquitetura,
- Projeto de Especialidades,
- Licenças camarárias,
- Transporte,
- Montagem,
- Qualquer intervenção necessária no terreno, ao nivel de terraplanagem, instalação de serviços ou nivelação.


























