4 318
M005
1
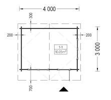
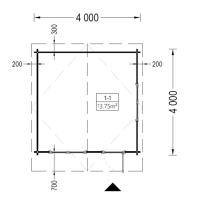
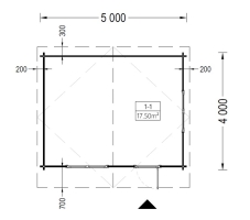
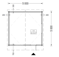
5x4
20 m2
5 - 6
DESCRIÇÃO
A casa modelo DREUX é um espaço amplo e luminoso, perfeito para criar um escritório de jardim, um estúdio ou uma oficina. Uma elegante saliência do telhado que oferece sombra confortável em dias ensolarados ou um excelente abrigo da chuva. Janelas e portas com vidros duplos que proporcionam isolamento térmico e acústico extra. A nossa casa DREUX é uma ótima escolha, pois não só é perfeita para armazenamento, mas também para descanso. Esta casa compacta não ocupará muito espaço no seu jardim e é uma solução multifuncional ideal: pode usá-la como escritório em casa, estúdio, oficina ou até mesmo um lugar onde pode relaxar confortavelmente no seu jardim durante o dia.
O que está incluído no nosso Orçamento?
- Pack com toda a estrutura em madeira da casa (Piso, paredes, teto de madeira, portas e janelas)
- Portas e janelas de vidro duplo,
- Chão em madeira,
- Ferragens.
O que NÃO está incluído no nosso Orçamento? (Poderá ser orçamentado à parte)
- Eletrodomésticos,
- Eletricidade e Canalizações,
- Laje de Betão,
- Projeto de Arquitetura,
- Projeto de Especialidades,
- Licenças camarárias,
- Transporte,
- Montagem,
- Qualquer intervenção necessária no terreno, ao nivel de terraplanagem, instalação de serviços ou nivelação.
CARACTERIÍSTICAS
| Material |
|---|
| Pinho nórdico natural / abeto escandinavo certificado |
| Porta (largura x altura) |
| 1* 85 cm x 192 cm |
| Área do telhado |
| Visualize em cada Variante |
| Superficie |
| Visualize em cada Variante |
| Janela (largura x altura) |
| 2* 138 cm x 105 cm |
| Altura dos beirais |
| 202,5 cm |
| Altura do cume |
| 256,5 cm |
| Telhado |
| Placas de 19-20mm de espessura |
| Beiral do telhado |
| 70 cm |
| Chão |
| Placas de 19-20mm de espessura |
| Paredes |
| 44 mm ou 66mm |
| Tratamento da madeira |
| Tratamento para madeira disponível como opção |
| Inclinação do telhado |
| 13° |
| Número de divisões |
| Visualize em cada Variante |
| Medidas interiores (largura x profundidade) |
| Visualize em cada Variante |
| Material da cobertura do telhado |
| Material para cobertura do telhado disponível como opção |
| Medidas exteriores (largura x profundidade) |
| Visualize em cada Variante |































